
Chủ đầu tư: Tập đoàn Vingroup
Diện tích đất: 29 ha
Chức năng dự án: Căn hộ chung cư; Biệt thự cao cấp
Vị trí: 2 Tôn Đức Thắng, P.Bến Nghé, Quận 1, TP Hồ Chí Minh
Tên chủ hộ: Chị L
Diện tích căn hộ: 115m2
Vị trí công trình: 2 Tôn Đức Thắng, P.Bến Nghé, Quận 1, TP Hồ Chí Minh
Diện tích thiết kế: 115m2

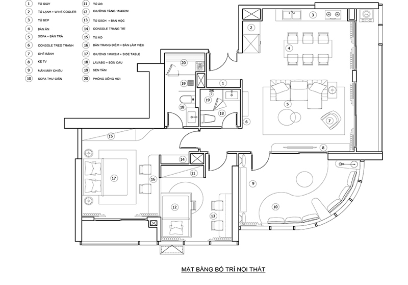
Căn hộ Vinhomes Golden River Bason 115m2 - một dự án thiết kế và thi công nội thất vừa được hoàn thành đầu năm 2022, công trình đi theo đúng tiến độ đề ra để gia chủ có thể trang hoàng và dọn vào ở trước thềm Tết Nguyên Đán. Căn hộ được thiết kế theo phong cách hiện đại, sang trọng nhưng cũng không kém phần ấm cúng nhờ sự góp mặt của chất liệu gỗ mộc mạc. Về bố cục không gian, khu vực chức năng cũng như bố trí nội thất đều không có quá nhiều thay đổi, tất cả đều bám sát theo bản vẽ thiết kế nội thất 3D. Sau đây, mời bạn tham quan những ngóc ngách bên trong căn hộ thời thượng này nhé.



































Khu vực lối ra vào và kệ để giày

Hành lang